Jalami 6 / 2 - 33 Luuslangi homes

Sold
Choose a layout Nool alla Nool paremale

Choose a layout

Kitchen island Kitchen island
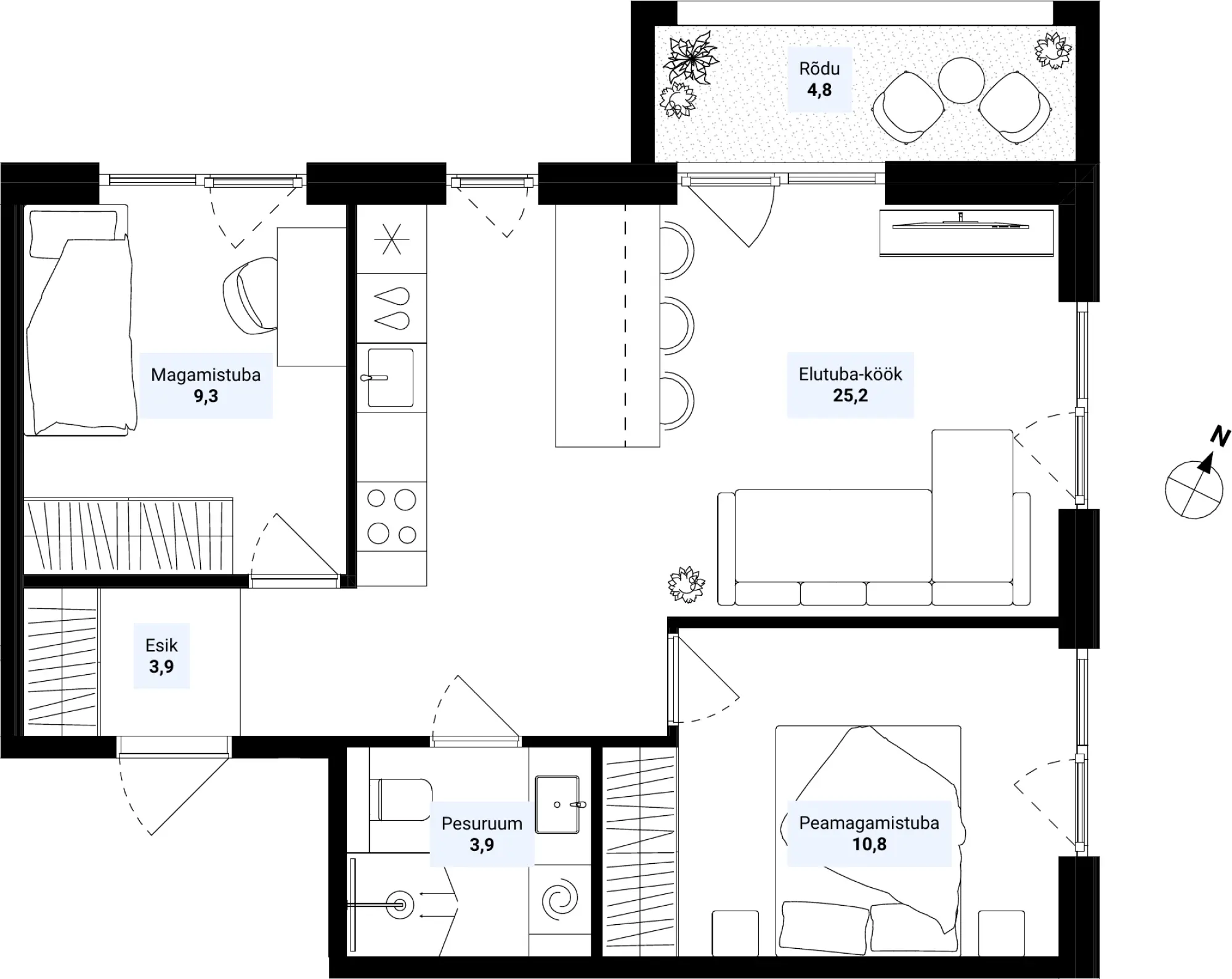
Apartment layout
Floorplan
Asendiplaan
Apartment layout
Floorplan
Asendiplaan