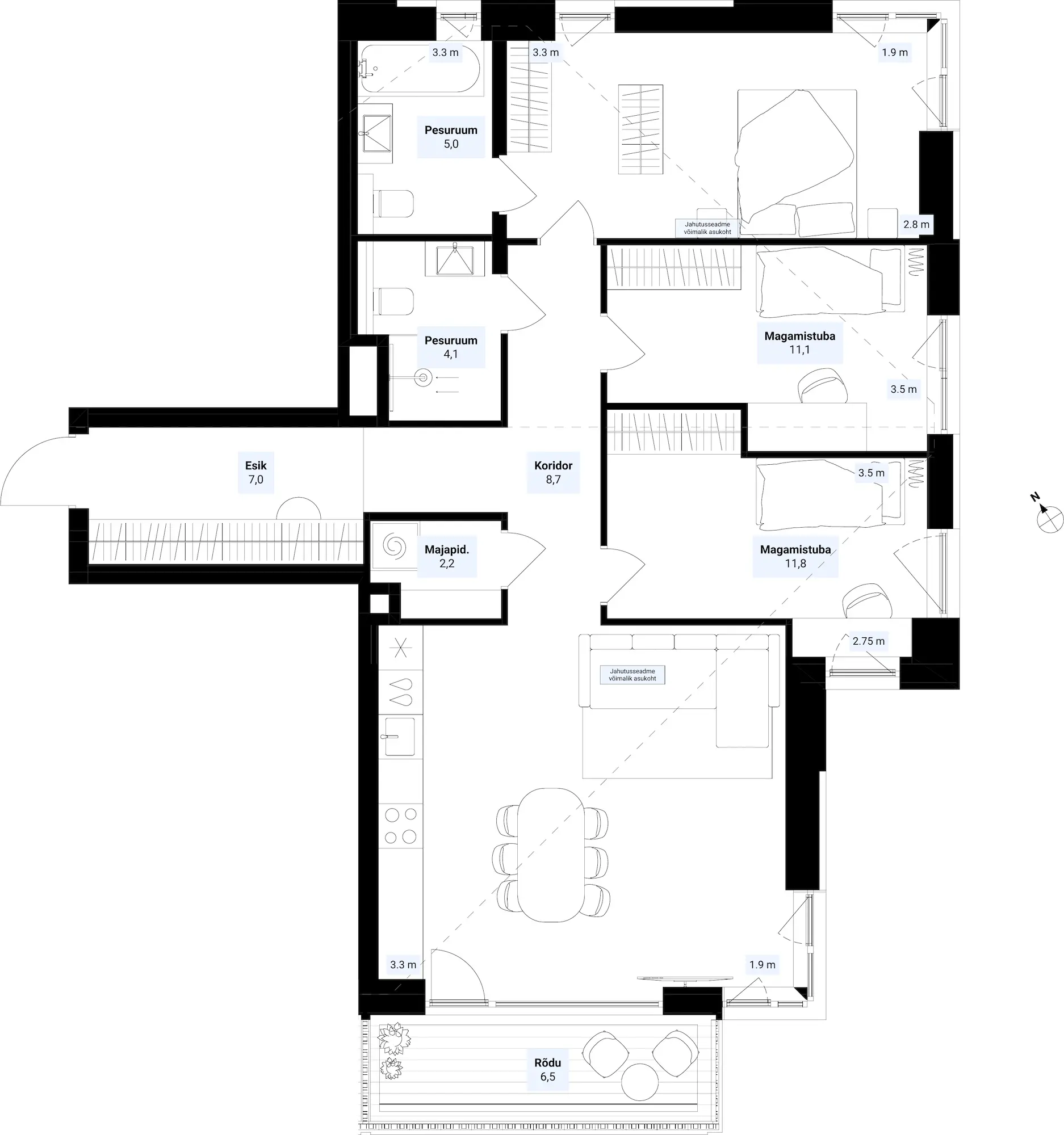
Erika 6b - 36 Peakorteri homes

Booked
Two bathrooms Two bathrooms
Master bedroom Master bedroom
Household room Household room
Bath Bath
Apartment layout
Floorplan
Asendiplaan
Emotsiooni foto