Roo tee 2 - 3 Iseära kortermajade homes

Sold
Walk-in closet Walk-in closet
Bath Bath
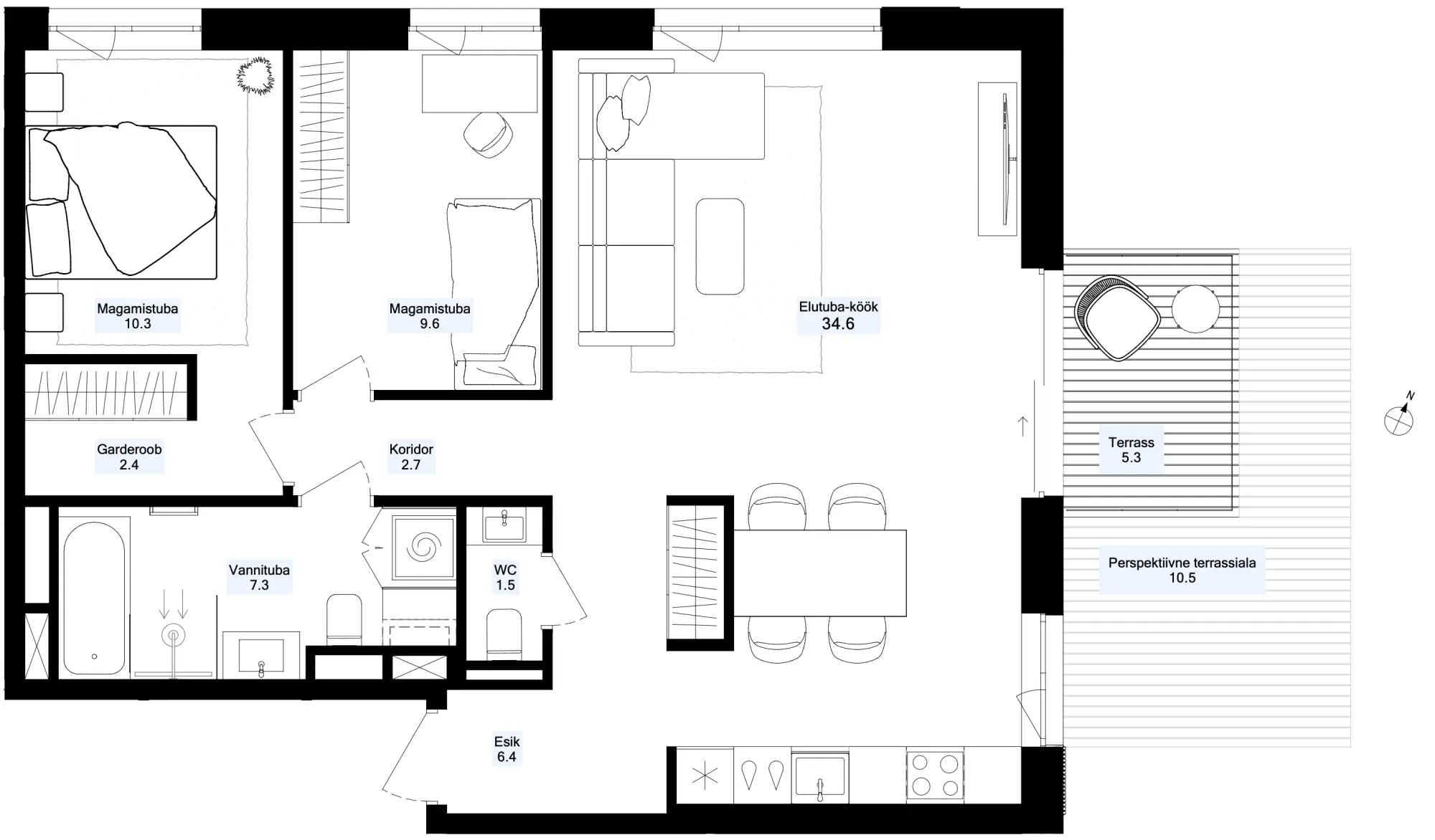
Apartment layout
Floorplan
Asendiplaan
Emotsiooni foto