Kõrkja 4 - 5 Iseära homes

Sold
Choose a layout Nool alla Nool paremale

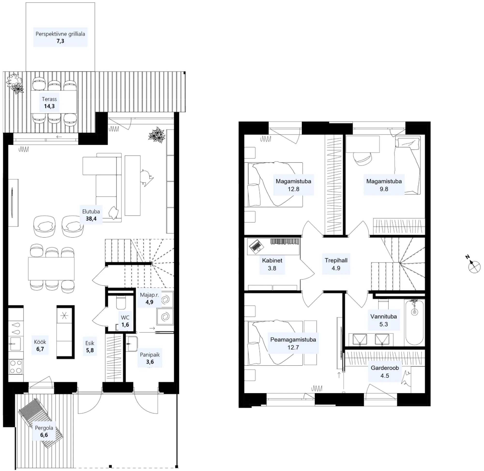
Choose a layout

You can choose the layout for this home until 15.06.2023

Planeeringu AB lisatasu on 7000 €

Home office Home office
Walk-in closet Walk-in closet
Apartment layout
Floorplan
Asendiplaan
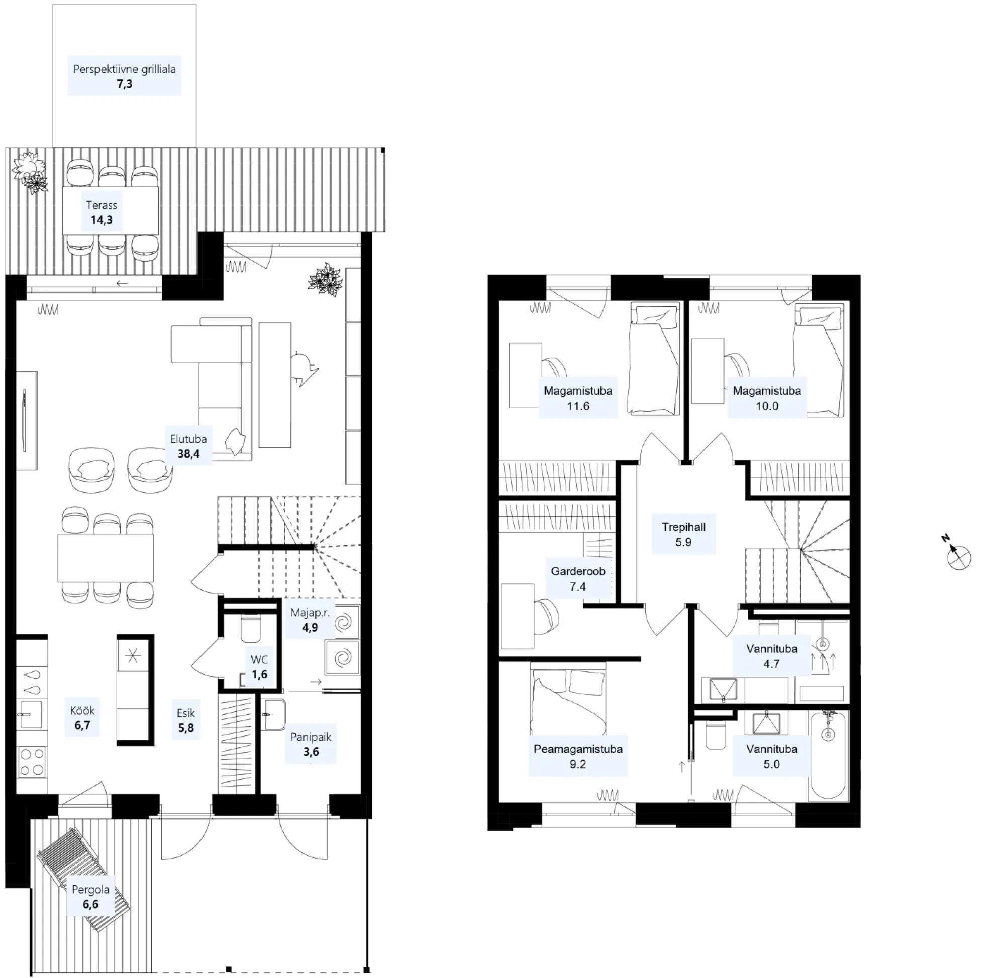
Two bathrooms Two bathrooms
Walk-in closet Walk-in closet
Apartment layout
Floorplan
Asendiplaan