Go back

Kalda 5 / 8 - 2 Olemuse homes

412 000 €

409 000 €

418 000 €

Choose a layout Nool alla Nool paremale

Choose a layout

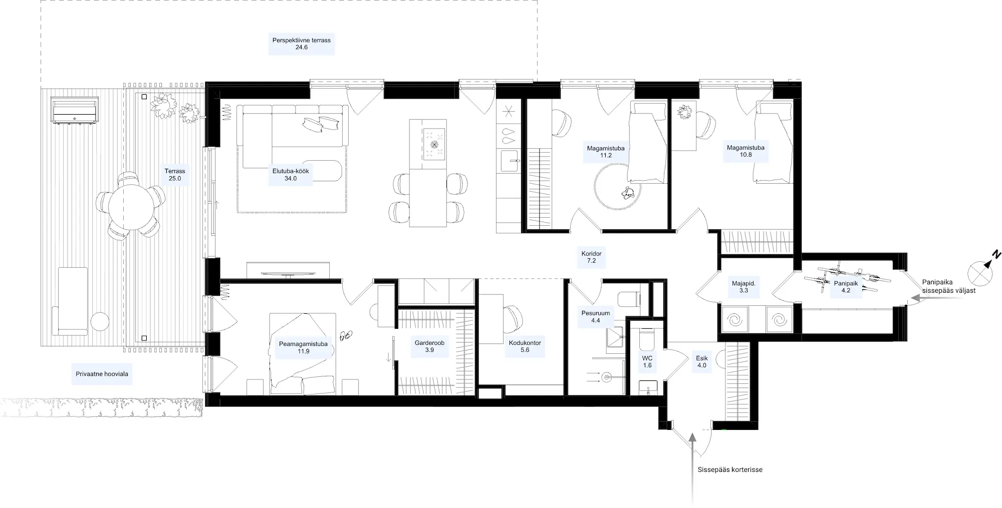
Planeeringu A lisatasu on 3000 €

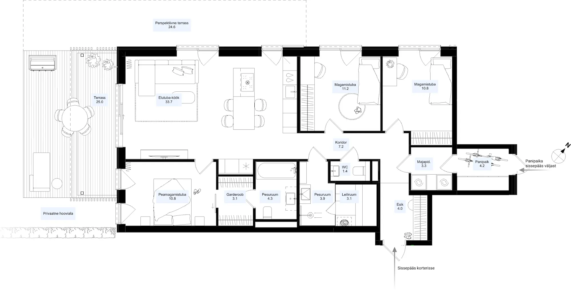
Planeeringu C lisatasu on 9000 €

Two bathrooms Two bathrooms
Master bedroom Master bedroom
Kitchen island Kitchen island
Walk-in closet Walk-in closet
Apartment layout
Floorplan
Asendiplaan
Home office Home office
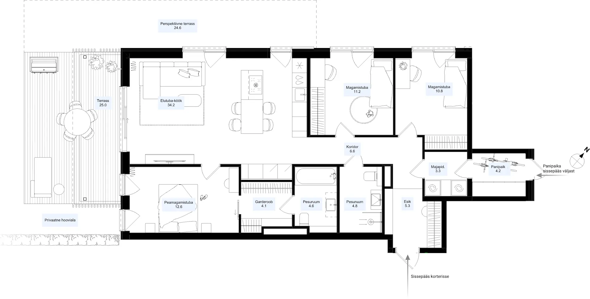
Two bathrooms Two bathrooms
Master bedroom Master bedroom
Kitchen island Kitchen island
Apartment layout
Floorplan
Asendiplaan
Sauna Sauna
Master bedroom Master bedroom
Kitchen island Kitchen island
Walk-in closet Walk-in closet
Apartment layout
Floorplan
Asendiplaan