Go back

Kalda 5 / 7 - 2 Olemuse homes

402 000 €

399 000 €

408 000 €

Choose a layout Nool alla Nool paremale

Choose a layout

Planeeringu A lisatasu on 3000 €

Planeeringu C lisatasu on 9000 €

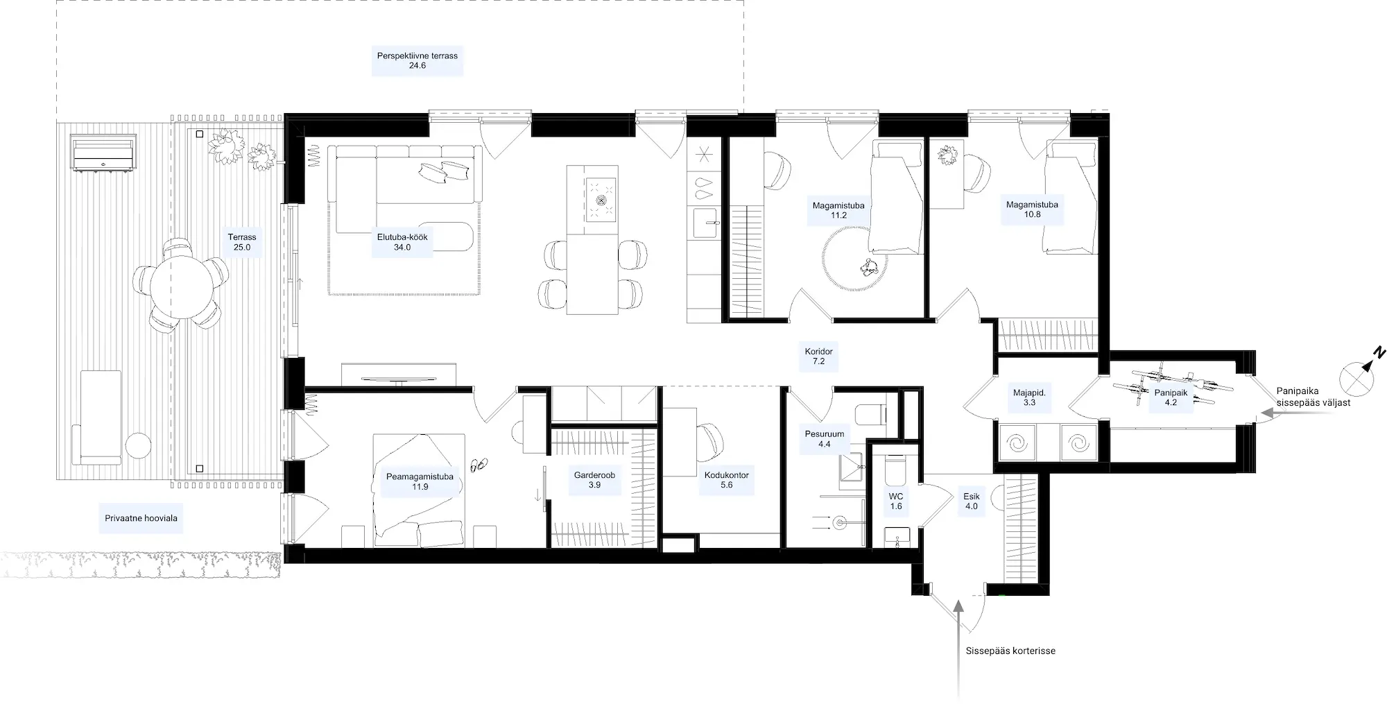
Two bathrooms Two bathrooms
Master bedroom Master bedroom
Kitchen island Kitchen island
Walk-in closet Walk-in closet
Apartment layout
Floorplan
Asendiplaan
Home office Home office
Two bathrooms Two bathrooms
Master bedroom Master bedroom
Kitchen island Kitchen island
Apartment layout
Floorplan
Asendiplaan
Sauna Sauna
Master bedroom Master bedroom
Kitchen island Kitchen island
Walk-in closet Walk-in closet
Apartment layout
Floorplan
Asendiplaan