Go back

Kalda 5 / 12 - 2 Olemuse homes

Booked
Choose a layout Nool alla Nool paremale

Choose a layout

Planeeringu A lisatasu on 3000 €

Planeeringu C lisatasu on 9000 €

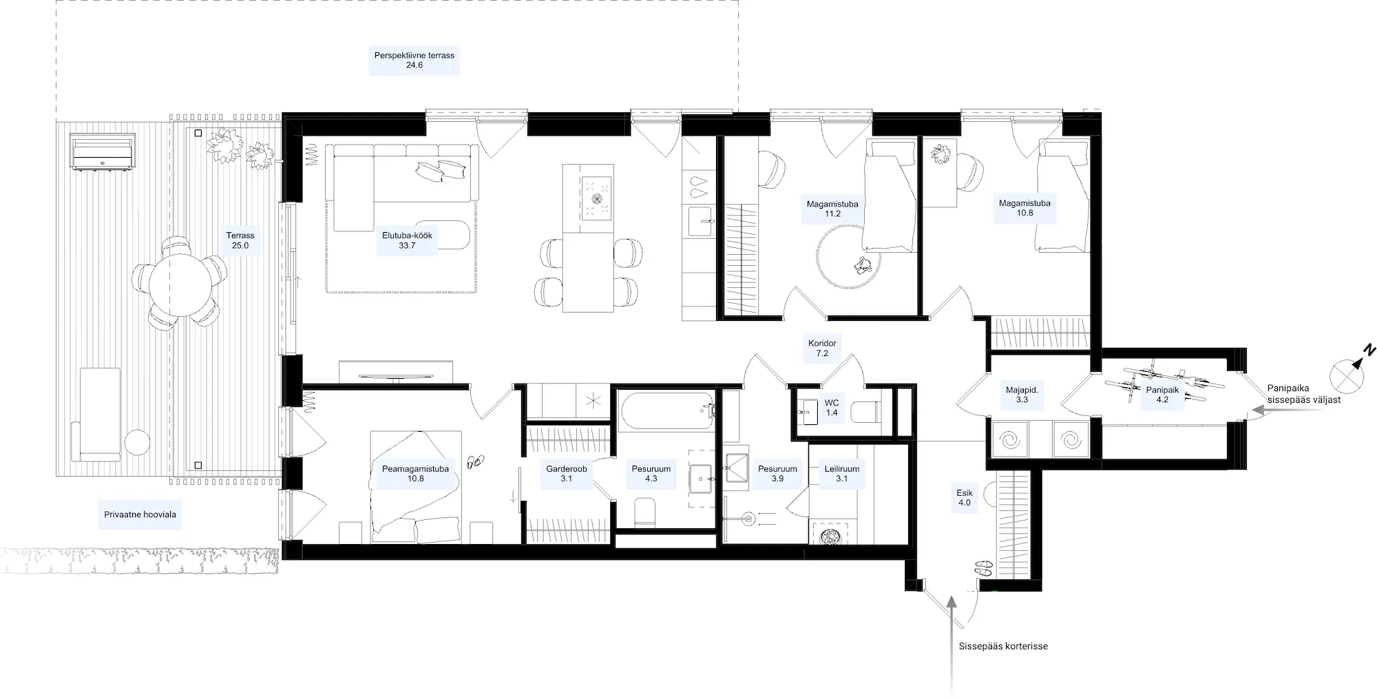
Two bathrooms Two bathrooms
Master bedroom Master bedroom
Kitchen island Kitchen island
Walk-in closet Walk-in closet
Apartment layout
Floorplan
Asendiplaan
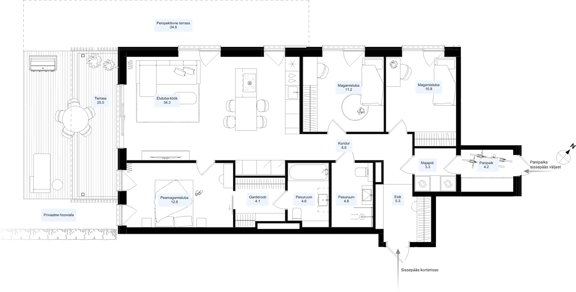
Home office Home office
Two bathrooms Two bathrooms
Master bedroom Master bedroom
Kitchen island Kitchen island
Apartment layout
Floorplan
Asendiplaan
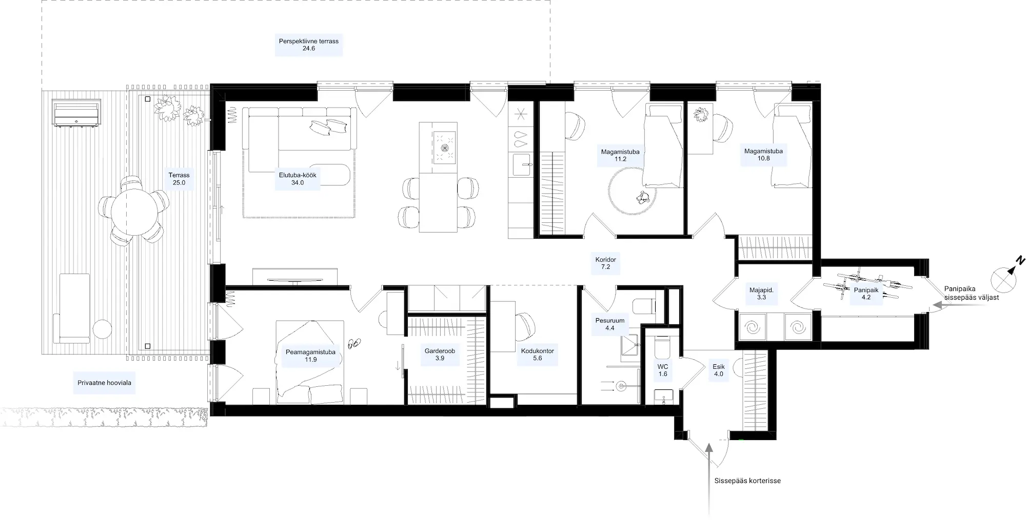
Sauna Sauna
Master bedroom Master bedroom
Kitchen island Kitchen island
Walk-in closet Walk-in closet
Apartment layout
Floorplan
Asendiplaan