Jalami 6 / 2 - 28 Luuslangi homes

Sold
Choose a layout Nool alla Nool paremale

Choose a layout

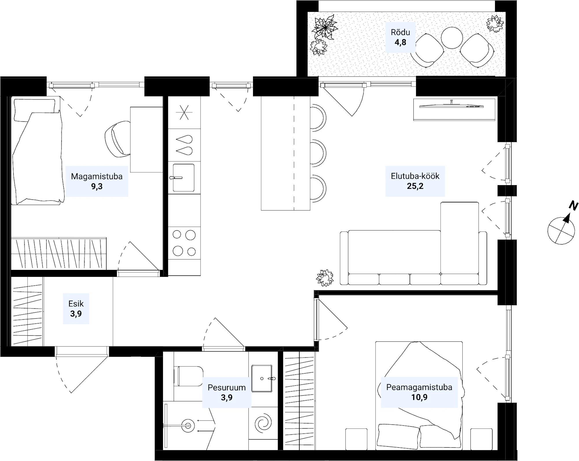
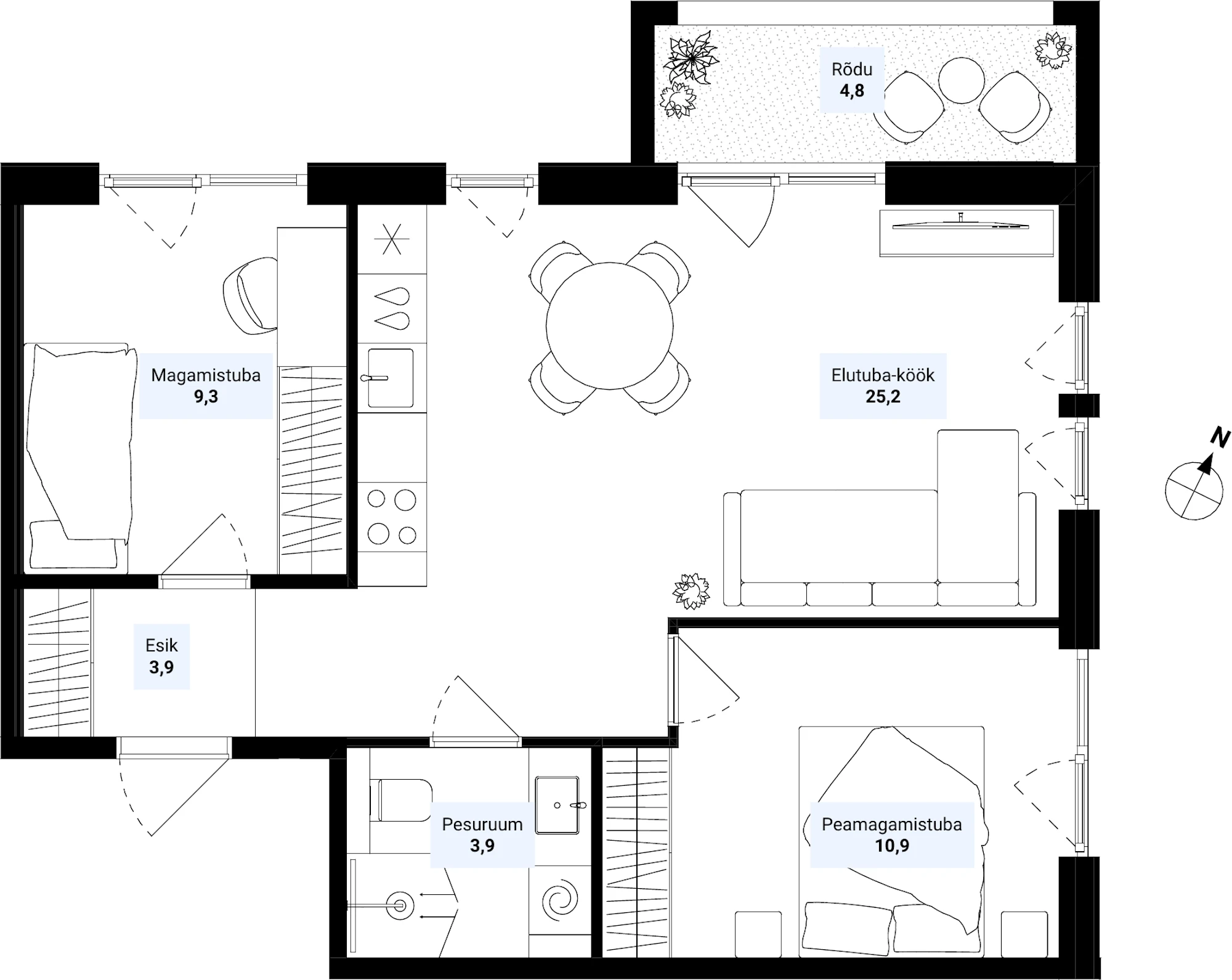
Kitchen island Kitchen island
Apartment layout
Floorplan
Asendiplaan
Apartment layout
Floorplan
Asendiplaan