Liven
178 900 €
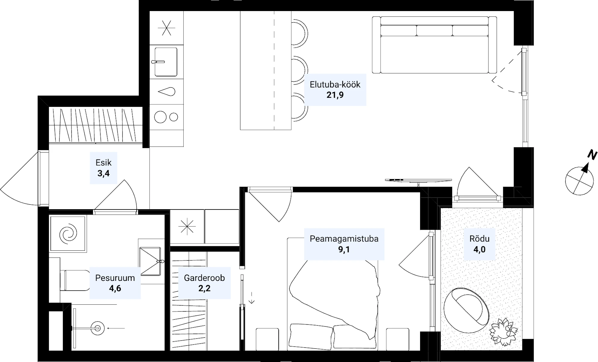
Kasuta meie kompassi, et määrata, kuidas Sinu kodus hakkab päikese liikumine olema.
For the new homes in the apartment buildings at Lutsu 2, 4, and 6 – a kitchen or a parking space and a storage room are included as a gift.
Choose your home
When purchasing Jalami 4/1 and Jalami 4/2 homes in the Luuslangi pre-sale, you get a kitchen with integrated appliances!
For the new homes in Koha 1, 2, 3, and 4 terraced houses, a gift of interior finishing and furniture fund worth €15,000.
For three more homes, receive an interior finishing and furniture fund worth up to €20,000 as a gift!