Kõrkja 3 - 5 Iseära homes

Sold
Choose a layout Nool alla Nool paremale

Choose a layout

You can choose the layout for this home until 30.09.2024

Planeeringu AB lisatasu on 7000 €

Planeeringu BA lisatasu on 15000 €

Planeeringu BB lisatasu on 22000 €

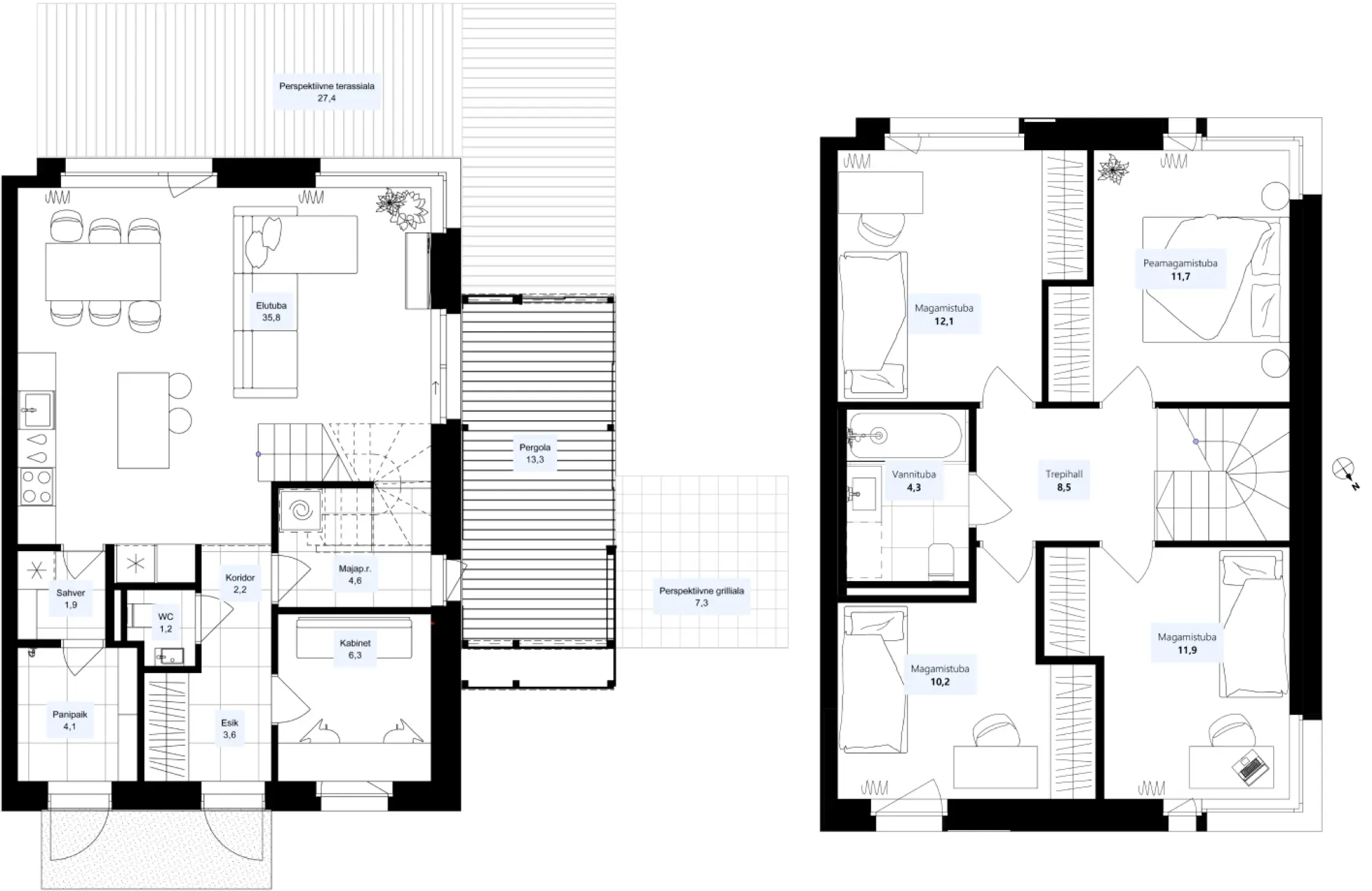
Apartment layout
Floorplan
Asendiplaan
Two bathrooms Two bathrooms
Walk-in closet Walk-in closet
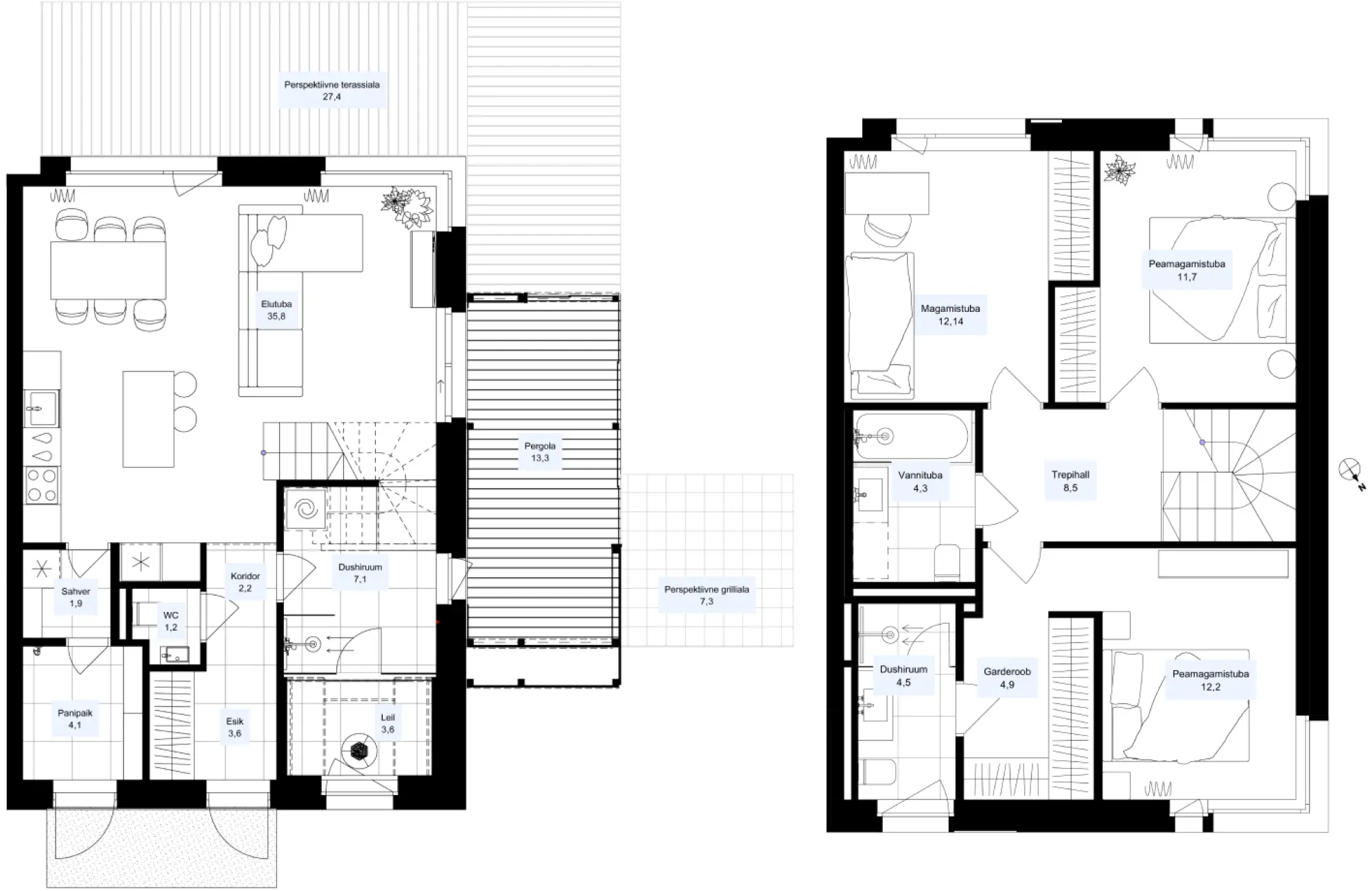
Apartment layout
Floorplan
Asendiplaan
Sauna Sauna
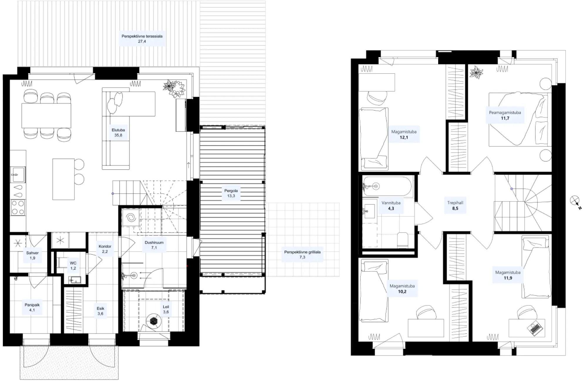
Apartment layout
Floorplan
Asendiplaan
Two bathrooms Two bathrooms
Walk-in closet Walk-in closet
Sauna Sauna
Apartment layout
Floorplan
Asendiplaan