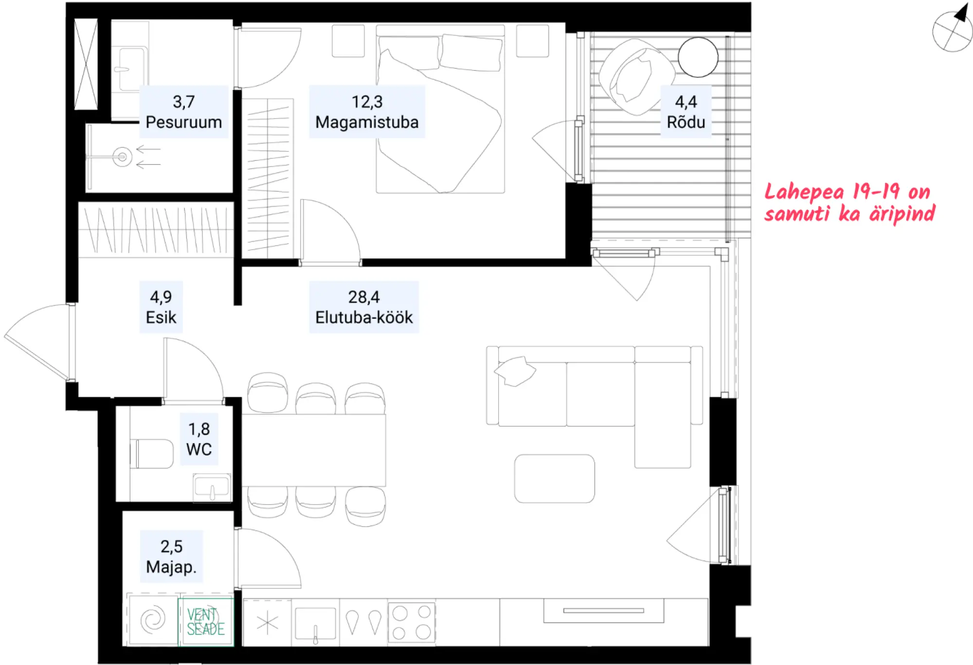
Lahepea 19 - 19 Uus Meremaa homes

Sold
Master bedroom Master bedroom
Household room Household room
Apartment layout
Floorplan
Asendiplaan