Regati pst 5 / 3 - 17 Regati homes

Sold
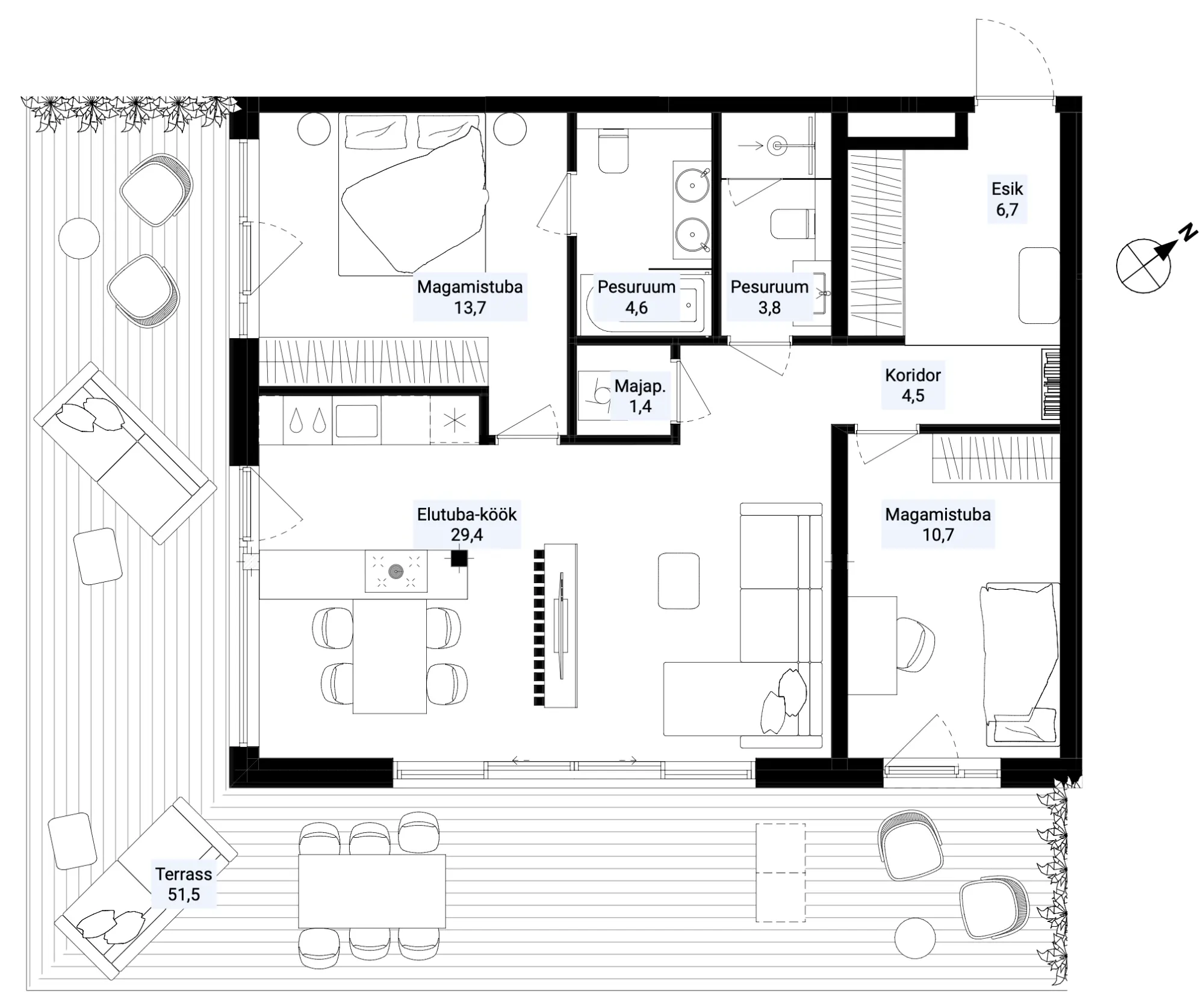
Two bathrooms Two bathrooms
Master bedroom Master bedroom
Kitchen island Kitchen island
Household room Household room
Apartment layout
Floorplan
Asendiplaan
Emotsiooni foto