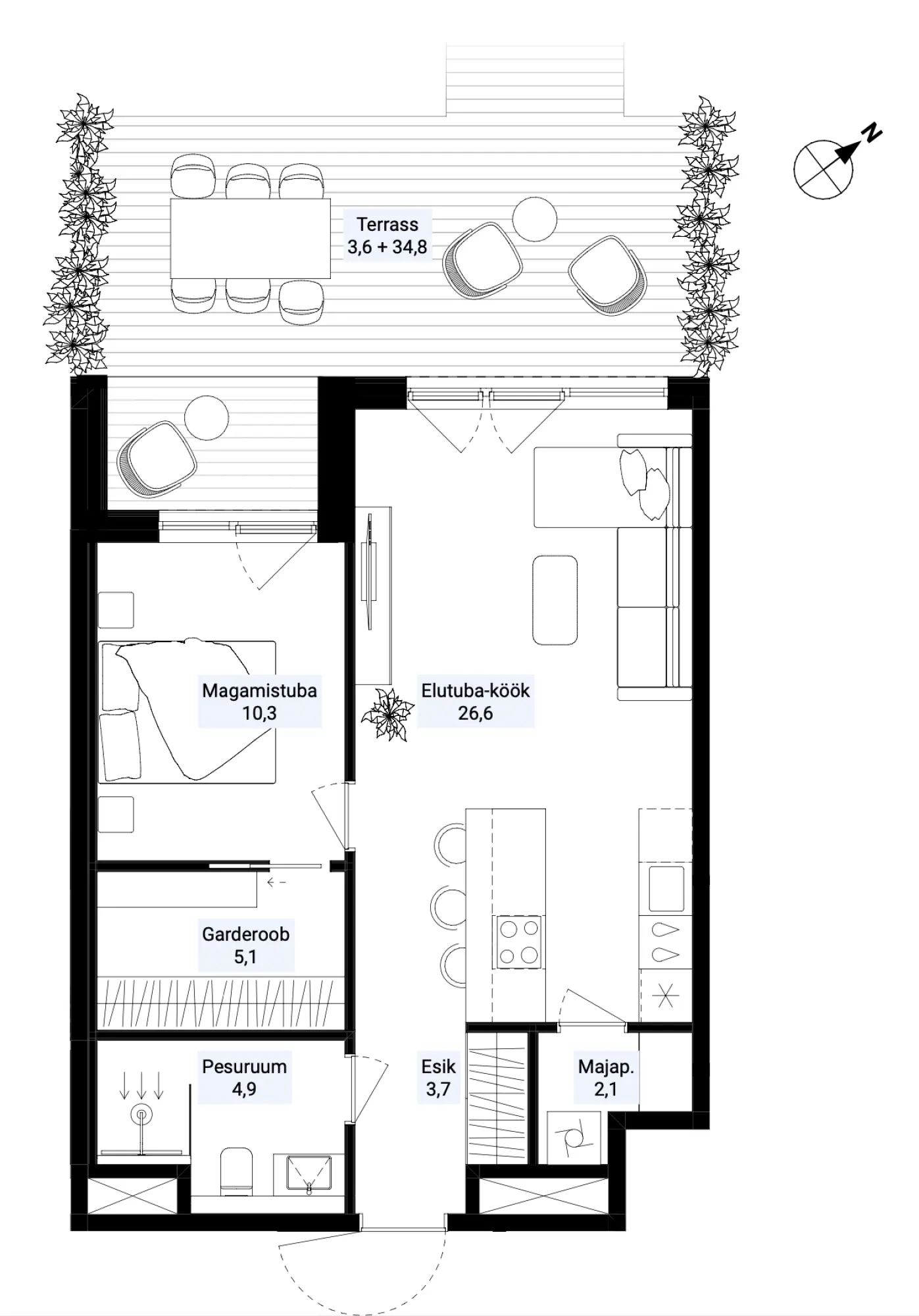
Regati pst 5 / 3 - 7 Regati homes

Sold
Kitchen island Kitchen island
Walk-in closet Walk-in closet
Household room Household room
Apartment layout
Floorplan
Asendiplaan
Emotsiooni foto