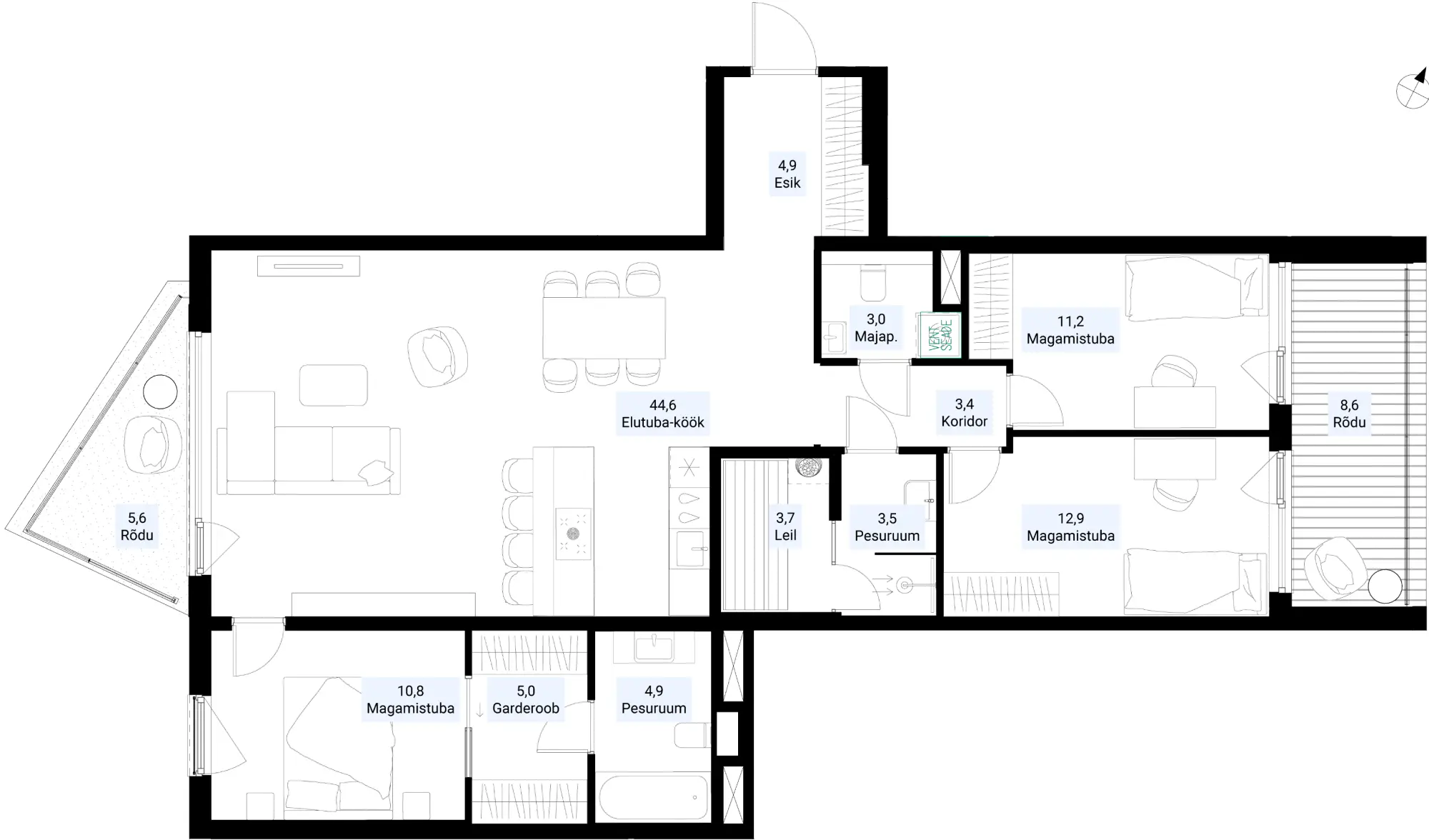
Lahepea 19 - 18 Uus Meremaa homes

Sold
Two bathrooms Two bathrooms
Master bedroom Master bedroom
Kitchen island Kitchen island
Sauna Sauna
Apartment layout
Floorplan
Asendiplaan
Emotsiooni foto