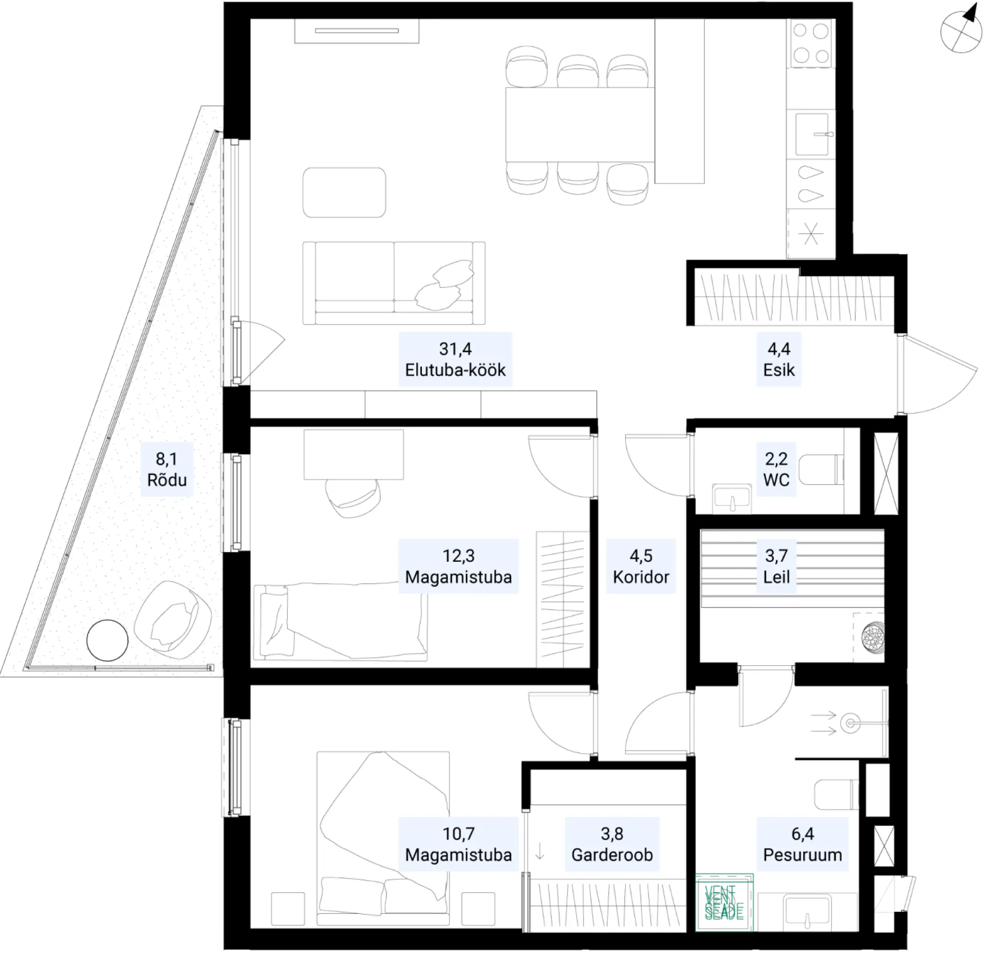
Lahepea 19 - 8 Uus Meremaa homes

Sold
Kitchen island Kitchen island
Walk-in closet Walk-in closet
Sauna Sauna
Apartment layout
Floorplan
Asendiplaan