Lahepea 17 - 14 Uus Meremaa homes

Sold
Walk-in closet Walk-in closet
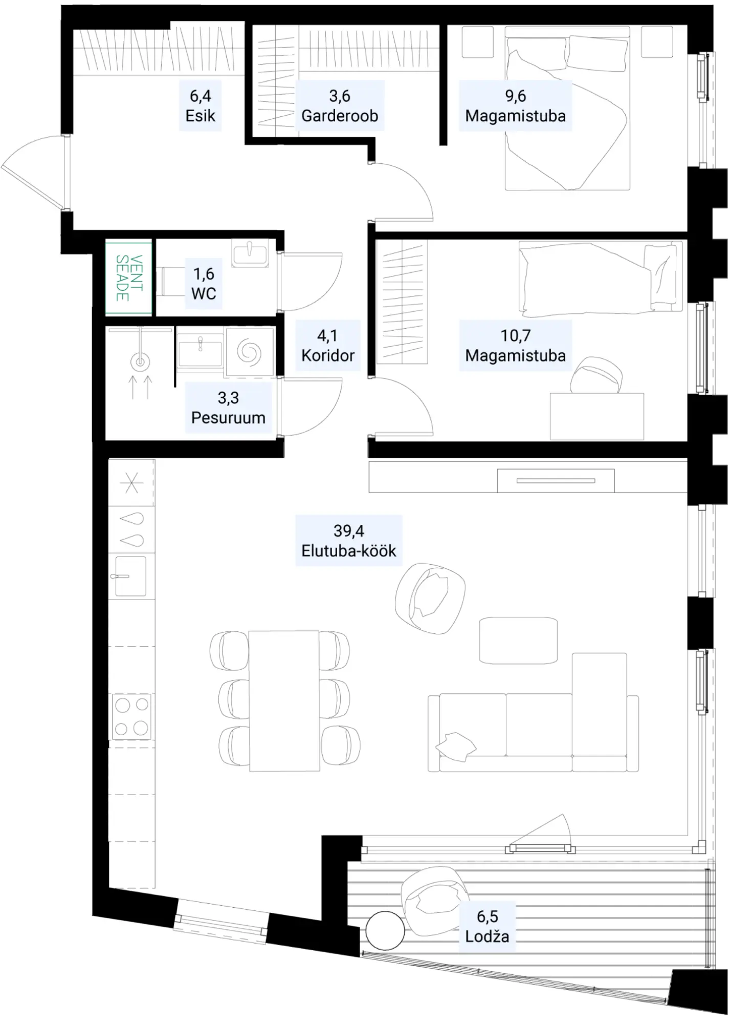
Apartment layout
Floorplan
Asendiplaan