Regati pst 5 / 2 - 7 Regati homes

Sold
Kitchen island Kitchen island
Household room Household room
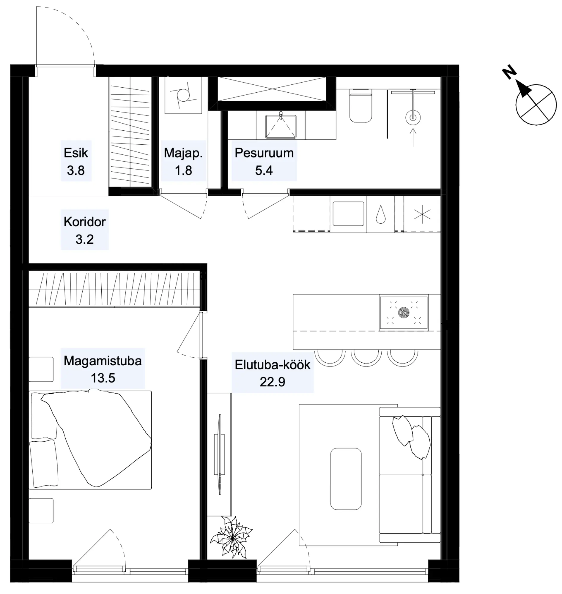
Apartment layout
Floorplan
Asendiplaan
Emotsiooni foto