Baroni maja - 1 Magdaleena homes

Ready to move in

699 000 €

790 000 €

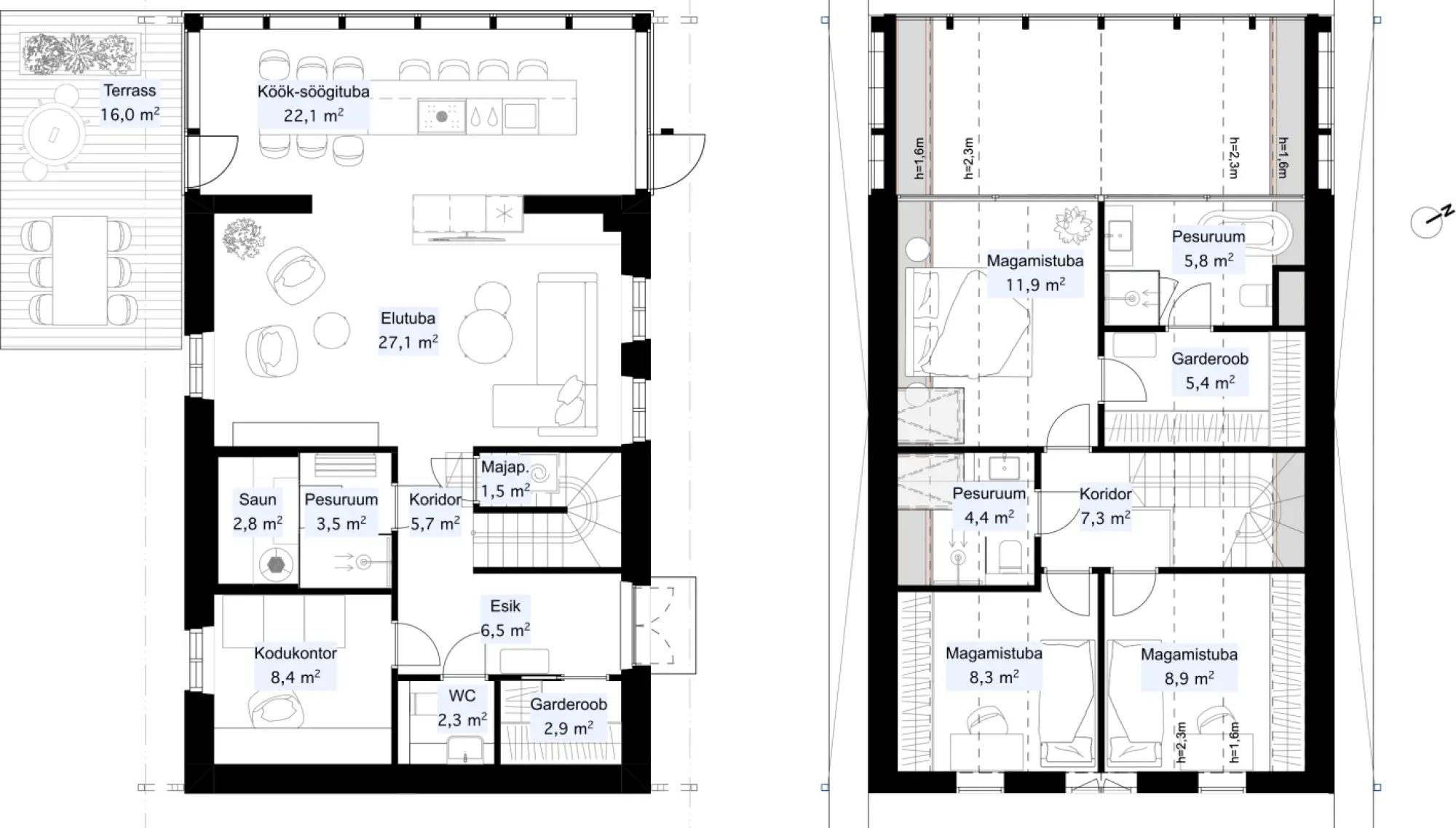
Two bathrooms Two bathrooms
Master bedroom Master bedroom
Kitchen island Kitchen island
Walk-in closet Walk-in closet
Apartment layout
Floorplan
Asendiplaan
Emotsiooni foto