Roo tee 2 - 5 Iseära kortermajade homes

Sold
Walk-in closet Walk-in closet
Household room Household room
Bath Bath
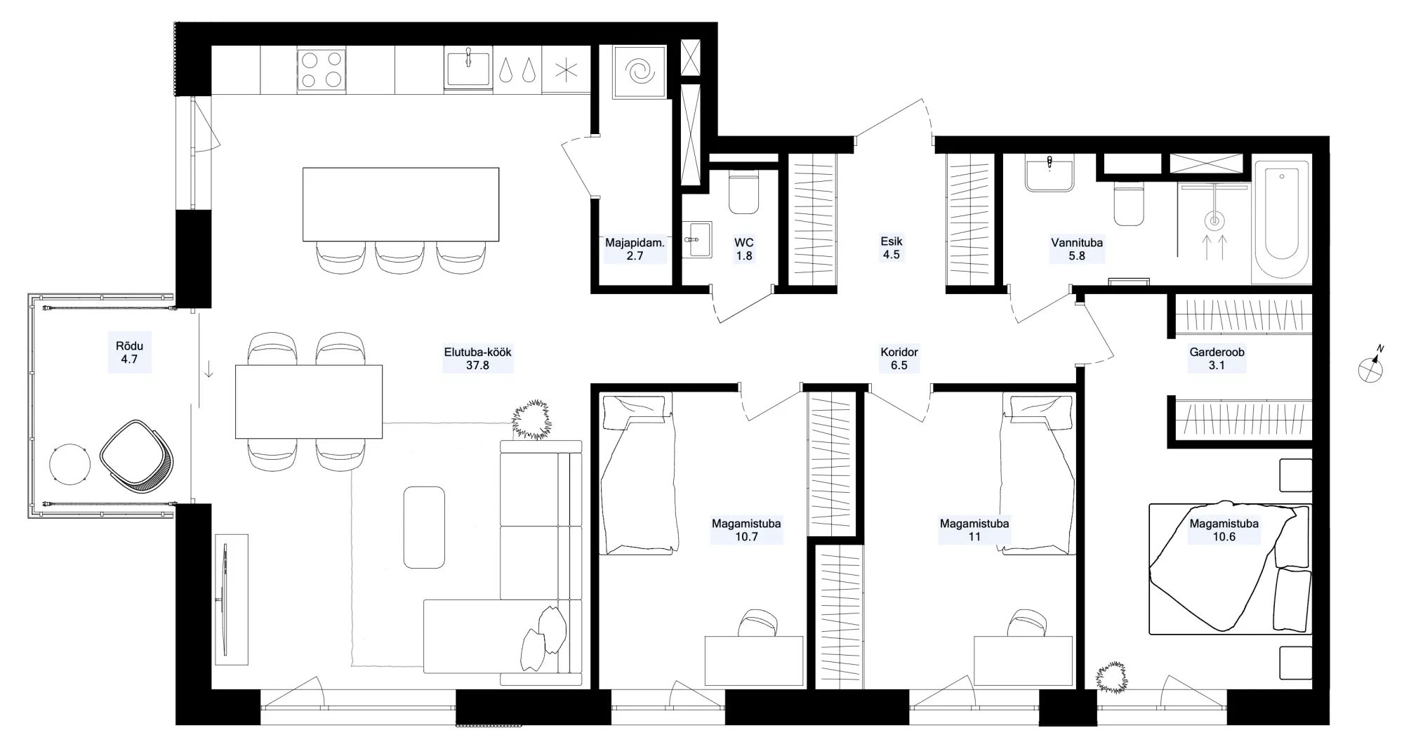
Apartment layout
Floorplan
Asendiplaan
Emotsiooni foto