Jalami 10 / 2 - 26 Luuslangi homes

Sold
Home office Home office
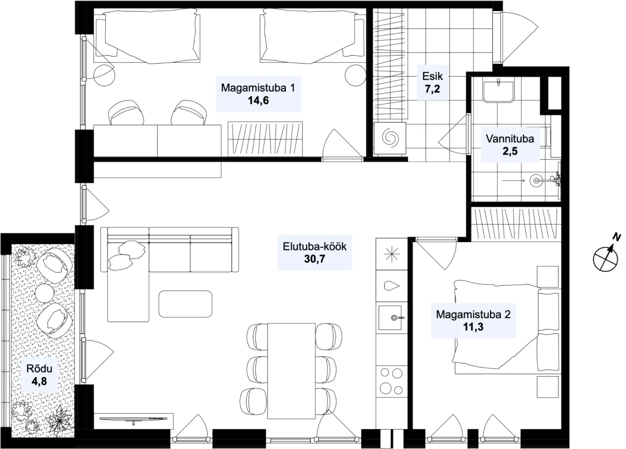
Apartment layout
Floorplan
Asendiplaan
Emotsiooni foto