Jalami 10 / 2 - 21 Luuslangi homes

Sold
Master bedroom Master bedroom
Walk-in closet Walk-in closet
Household room Household room
Home office Home office
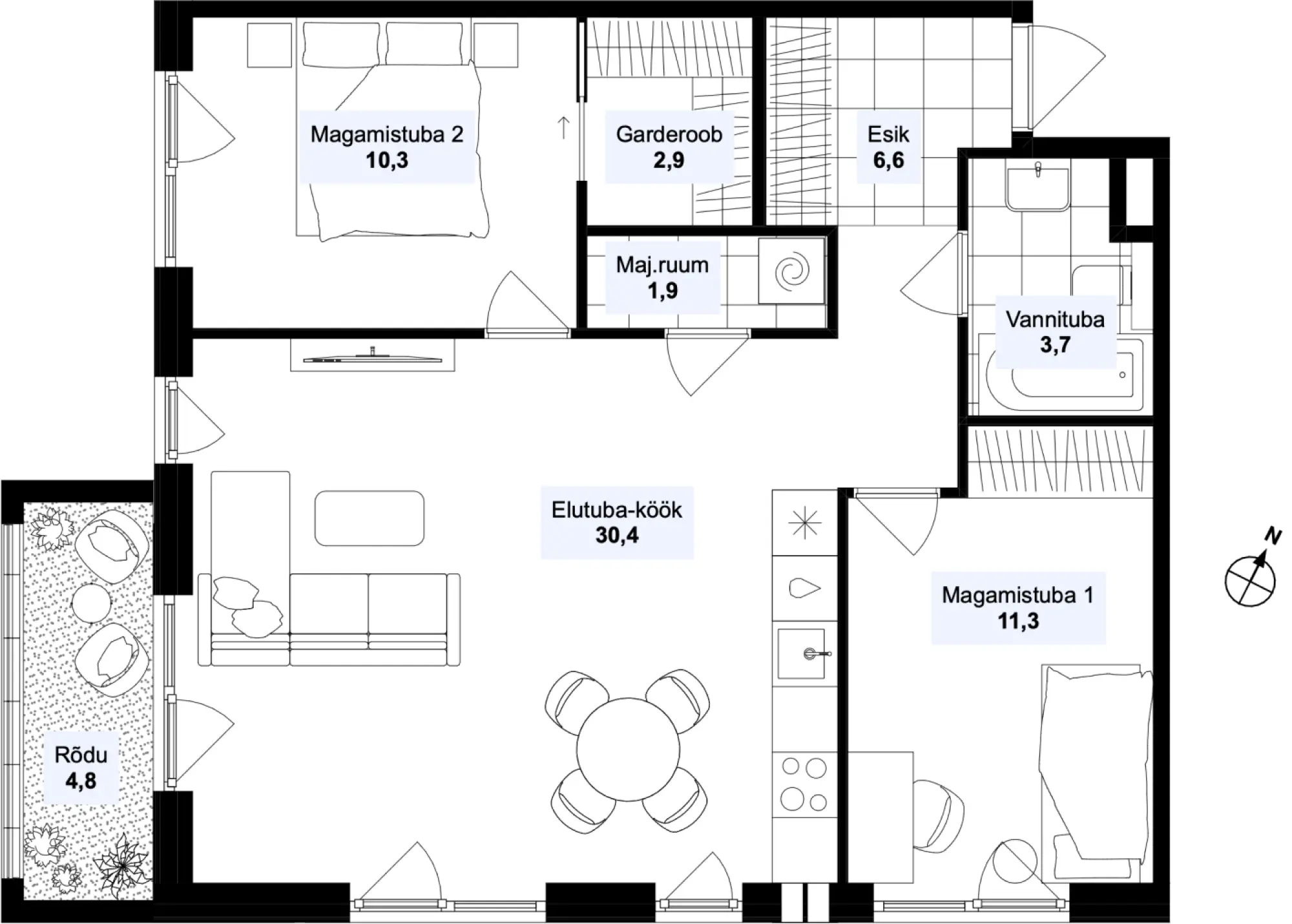
Apartment layout
Floorplan
Asendiplaan
Emotsiooni foto