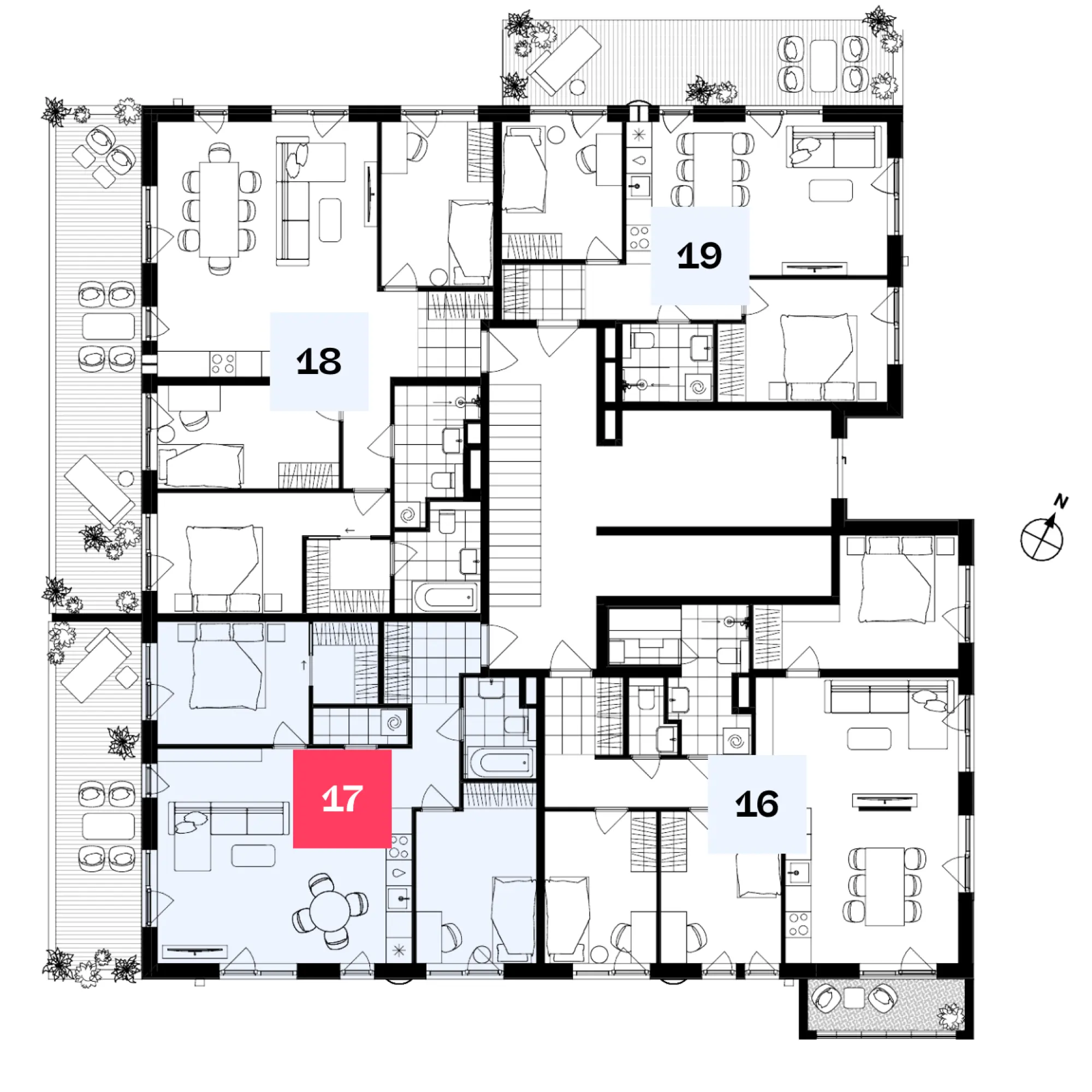
Jalami 10 / 2 - 17 Luuslangi homes

Sold
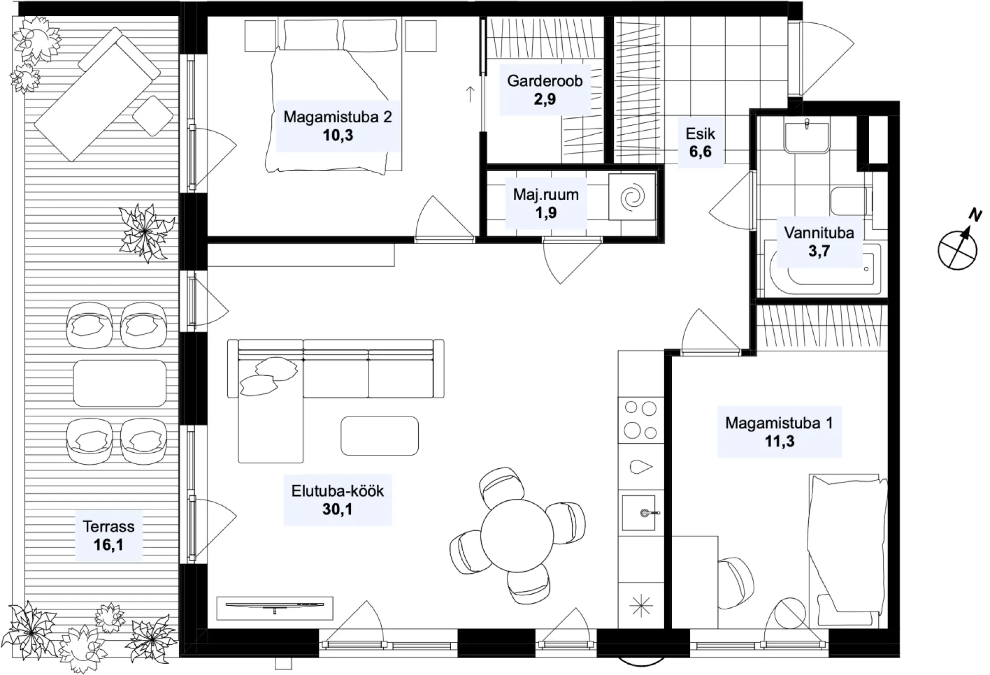
Master bedroom Master bedroom
Walk-in closet Walk-in closet
Household room Household room
Home office Home office
Apartment layout
Floorplan
Asendiplaan
Emotsiooni foto