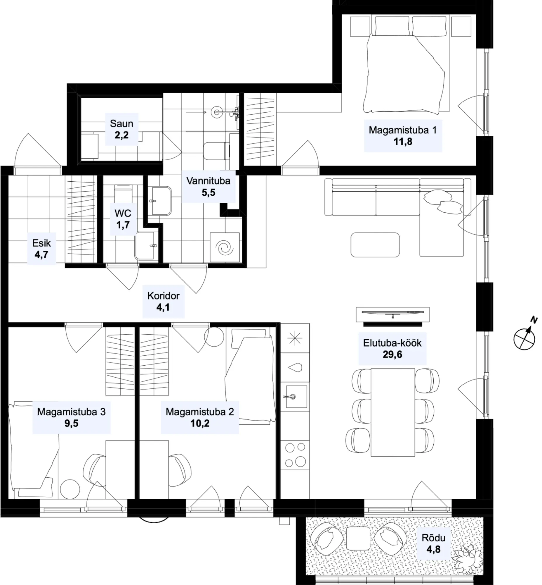
Two bathrooms
Sauna
Home office