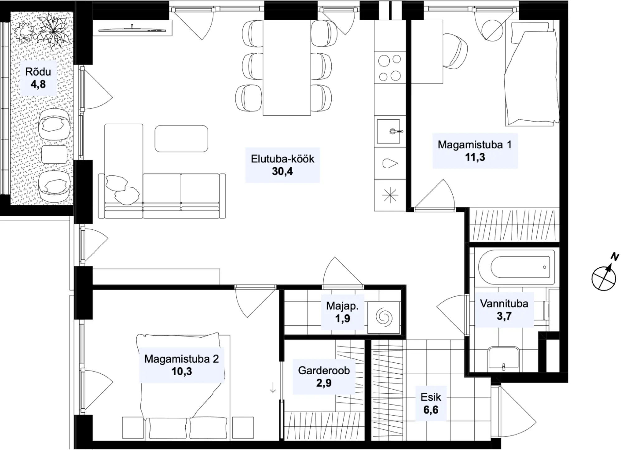
Master bedroom
Walk-in closet
Household room
Home office