Jalami 10 / 1 - 5 Luuslangi homes

Booked
Household room Household room
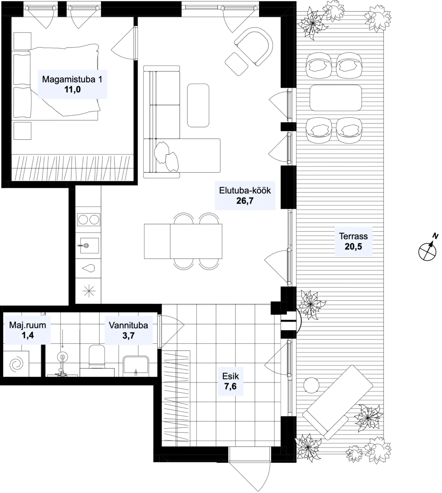
Apartment layout
Floorplan
Asendiplaan
Emotsiooni foto