Jalami 10 / 1 - 2 Luuslangi homes

Sold
Two bathrooms Two bathrooms
Master bedroom Master bedroom
Walk-in closet Walk-in closet
Sauna Sauna
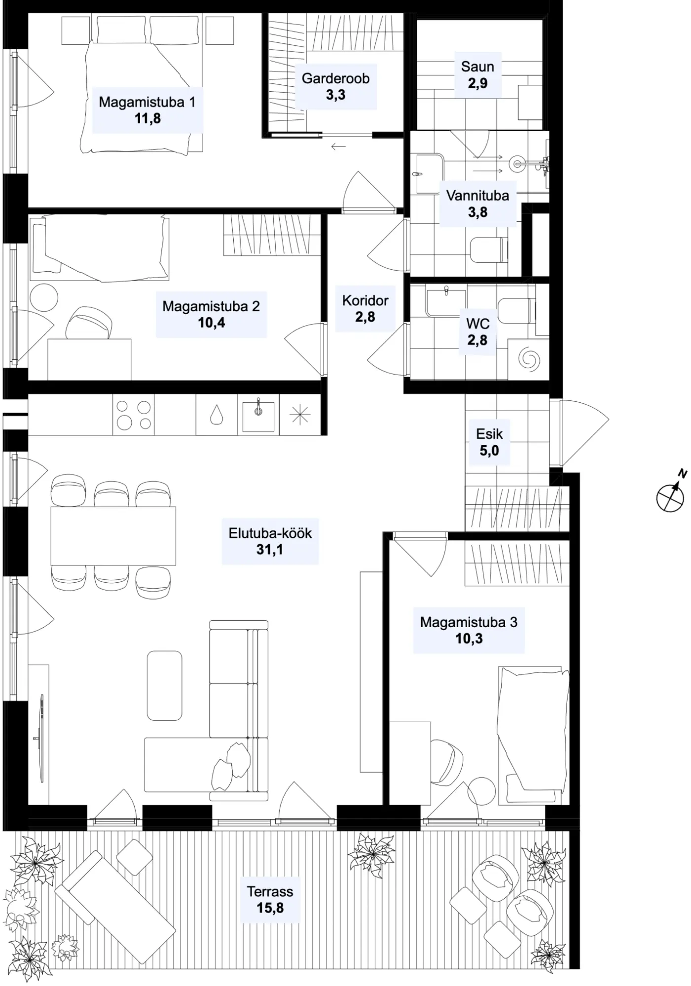
Apartment layout
Floorplan
Asendiplaan
Emotsiooni foto