Jalami 8 / 2 - 32 Luuslangi homes

Sold
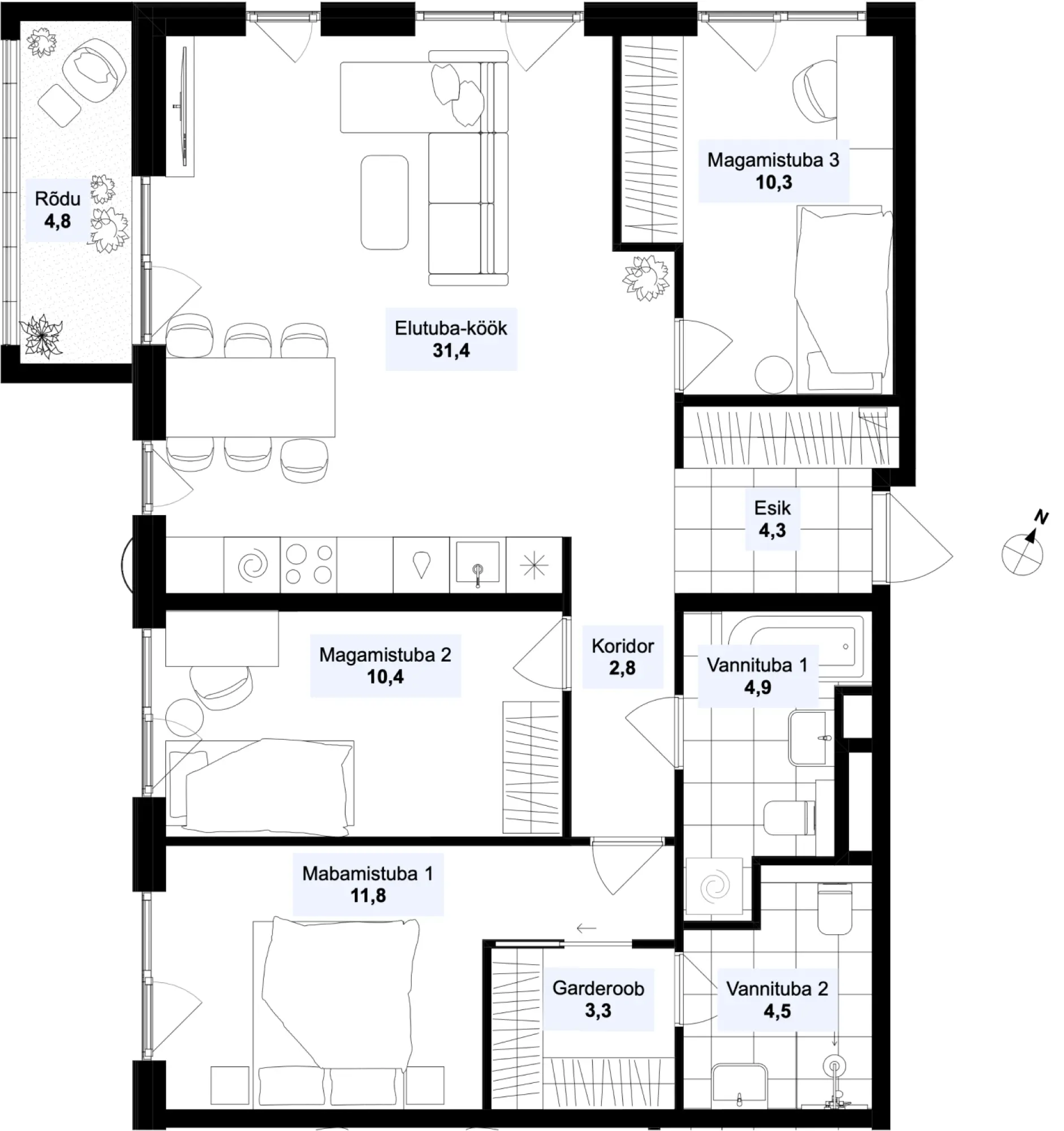
Two bathrooms Two bathrooms
Master bedroom Master bedroom
Walk-in closet Walk-in closet
Home office Home office
Apartment layout
Floorplan
Asendiplaan