Erika 6b - 16 Peakorteri homes

269 000 €

Walk-in closet Walk-in closet
Household room Household room
Sauna Sauna
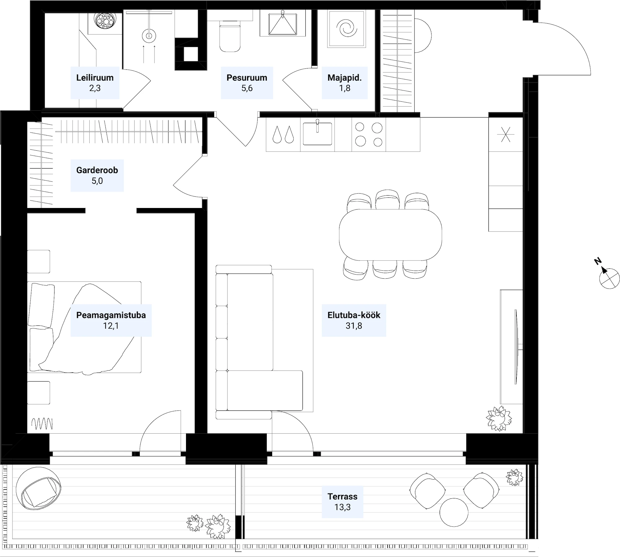
Apartment layout
Floorplan
Asendiplaan
Emotsiooni foto