Erika 6a - 28 Peakorteri homes

Sold
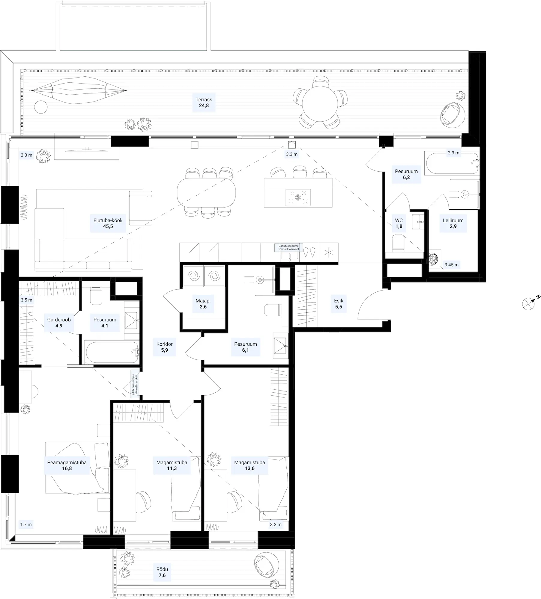
Two bathrooms Two bathrooms
Master bedroom Master bedroom
Kitchen island Kitchen island
Walk-in closet Walk-in closet
Apartment layout
Floorplan
Asendiplaan
Emotsiooni foto