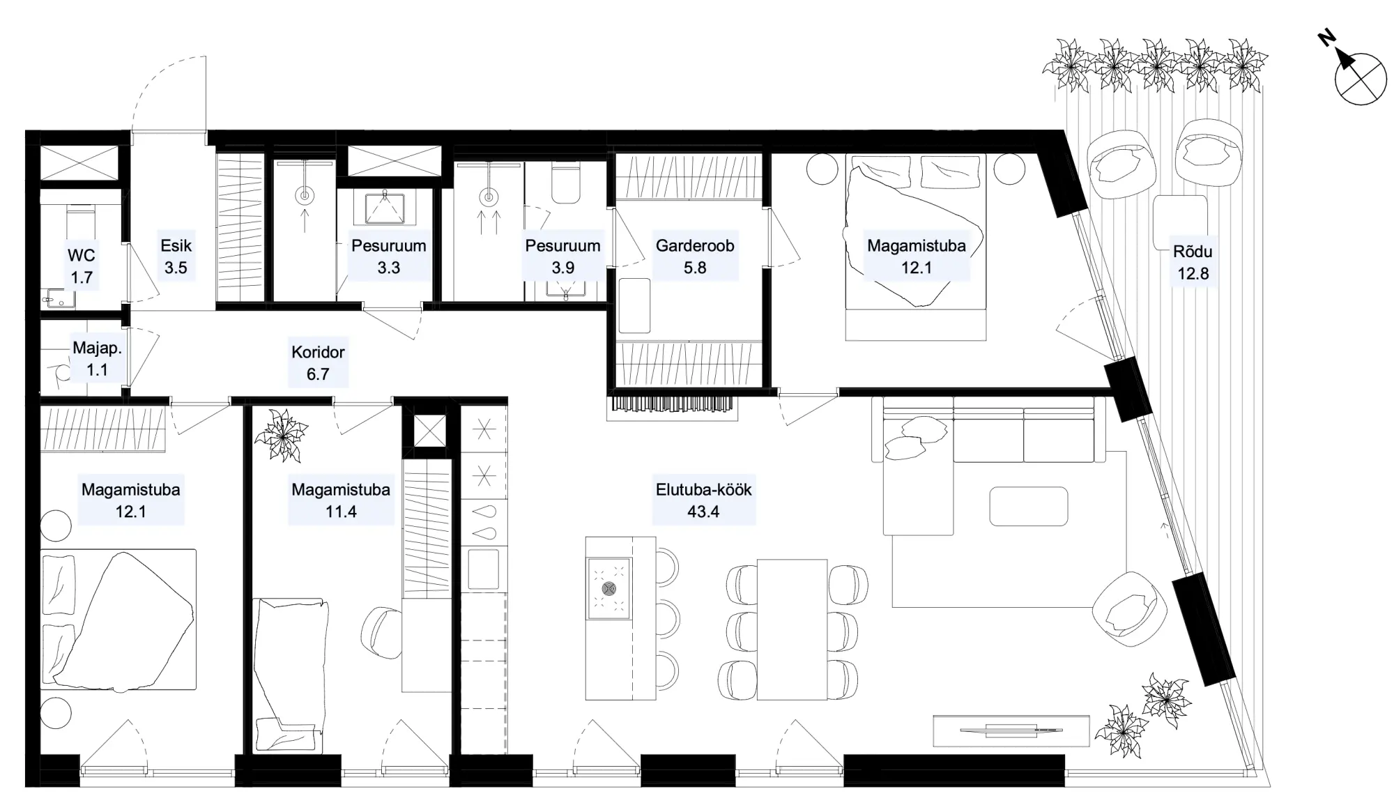
Regati pst 5 / 2 - 15 Regati homes

Sold
Two bathrooms Two bathrooms
Master bedroom Master bedroom
Kitchen island Kitchen island
Household room Household room
Apartment layout
Floorplan
Asendiplaan
Emotsiooni foto